Sprung zum Inhalt

SPACE FOR INDIVIDUAL LIVING – partially renovated four-sided farmstead and idyllic garden in Beelitz

Object details
Object ID
100390A-BbB
Object type
Farmhouse
Purchase or rent
Purchase
Year of construction
1896
State
Maintained
Prices
Purchase price
579.000,00 €
Outside fee
3,57% des Kaufpreises inkl. 19% Mwst.

Description

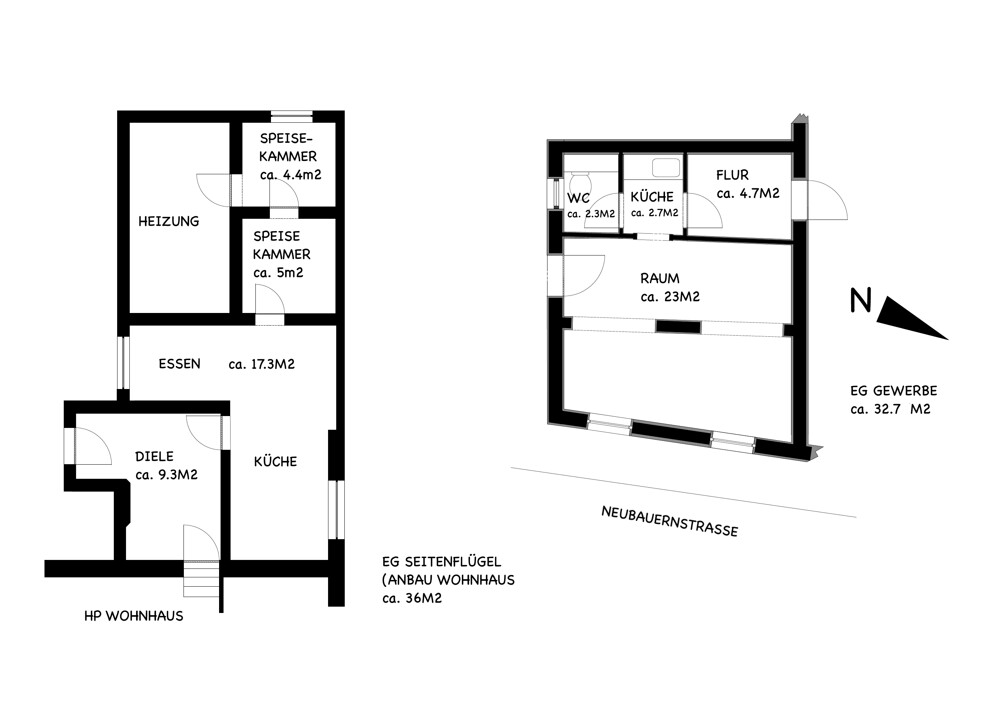
Welcome to this quiet four-sided farmstead, which offers plenty of space for individual use and living arrangements with its historic and authentic charm and generous areas. The house has enough rooms to accommodate a large family, several generations and guests. A variety of barn, stable and garage areas - estimated to total approx. 1,400 m² - as well as the generous area of the courtyard, which is enclosed on all sides, with its covered entrance area and electric sectional door as access, are available for hobbies, business, storage, private use or other creative usage concepts. In the modern, separate commercial unit of approx. 32 sqm with toilet and pantry kitchen, several windows facing the street and a separate entrance, you can pursue various professional activities or office work.

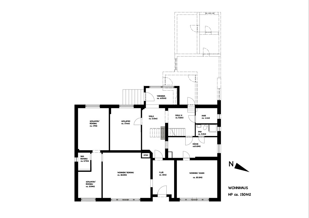
Built in 1896, the residential building exudes a cozy atmosphere. On a total of approx. 287 sqm of living space, you will find three kitchens and three bathrooms as well as plenty of storage space and a cellar. 2-3 residential units are conceivable. The house has been gradually modernized over the years without losing its original character. The right-hand half of the mezzanine and the attic have been designed entirely as one continuous living space with an internal staircase. The left-hand part of the mezzanine floor with 3 rooms and a bathroom is being renovated and is therefore in the shell. The electrics and water connections have already been laid, but the flooring (floorboards) and walls/ceilings have yet to be finished. A few steps lead down from the hallway on the mezzanine floor of the residential building to the ground floor of a wing-like extension. On the first floor there is a hallway, a kitchen/dining room with two pantries and access to the boiler room.
The solar system with storage tank provides sustainable energy and contributes to independence.

The plot covers approx. 3,600 m². The garden land behind the four-sided courtyard consists mainly of meadow and a few fruit trees. The far-reaching views over the fields with a view of the village center with church are very idyllic and invite you to relax, garden or keep animals.

The quiet location in Wittbrietzen, just a few minutes from Beelitz and 30 minutes from Potsdam, combines the advantages of country life with proximity to the city.

Location

The property in Neubauernstraße is located on the outskirts of Wittbrietzen, a charming district of Beelitz, the asparagus town, in the Potsdam-Mittelmark district not far from Potsdam. Here you can enjoy a harmonious combination of rural idyll and a well-developed infrastructure.
Wittbrietzen is known for its friendly community, well-kept nature and a variety of leisure activities such as horse riding, soccer and other club activities. In the village you will find a small supermarket with a bakery and post office as well as a kindergarten - all within easy walking or cycling distance. For larger purchases and other schools and services, the nearby towns of Beelitz, Werder (Havel) and Potsdam are within easy reach.

Distances and transport connections:
- Town of Beelitz: approx. 8 km,
- Beelitz-Elsholz train station: approx. 3.6 km - regular train connections to Potsdam and Berlin,
- State capital Potsdam: approx. 35 km - approx. 30 minutes by car or public transport,
- Berlin: approx. 70 km - about 1 hour via the A10 and A115 highways or by train

Equipment

The equipment and decoration includes, among other things:

RESIDENTIAL HOUSE HP & DG:
- 7.5 rooms on approx. 251sqm living space,
- built in 1896, full basement,
- 3 functional bathrooms, 1 bathroom in the shell,
- 3 kitchens,
- Extension of the attic and renovation incl. kitchen bathroom 1986/1989,
- new plastic windows approx. 1999,
- Roof re-roofing approx. 2005, 2x new roof windows approx. 2010,
- new front door approx. 2023,
- Modernization electrics, walls, bathroom, kitchen ground floor right 2018/ 2024,
- Modernization ground floor left in progress (shell construction, electrics laid but not yet connected) since 2024,
- Energy certificate is in preparation and will be presented,

SIDE WING EG:
- Hallway, kitchen-dining room, two pantries,
- approx. 36sqm living space,
- Access from the house and from the courtyard,
- boiler room with central heating gas/wood combination from approx. 2010,
- Roof renewed approx. 2010,

GROUND FLOOR:
- newly converted approx. 2010,
- Hallway, pantry kitchen, WC, large room with window to the street,
- approx. 32sqm,
- own entrance from the street,

GROUND PLOT:
- total approx. 3600sqm,
- of which an estimated approx. 1600sqm inside (with the buildings) and an estimated approx. 2000sqm outside as garden land,

BARN, STABLE AND OUTBUILDINGS:
- total estimated approx. 1400sqm,
- Stable left barn courtyard side roof renewed approx. 2001,
- Stable right. Roof renewed approx. 2010,
- Sectional door & gate electrically new approx. 2017,
- Garage and gate left electrics approx. 2010,
- Garage door stable right approx. 2014,
- Carport completely new approx. 2015,
- Solar system from Enpal on roof: 24 panels and 10 kW storage for electricity generation per rental contract for 20 years since 2021,

Other

By making use of our brokerage services as a broker for the purpose of providing evidence and/or brokerage, a brokerage contract is concluded on the basis of the data in this property exposé. The fee is earned and due as soon as the opportunity to conclude a purchase contract has been proven and the purchase contract has been concluded or the purchase contract has been brokered and concluded. As the end consumer, you have a 14-day right to cancel the brokerage contract. All information is based on the information provided by the owner/seller or cooperation partner.
Please understand that, in order to protect the residents, we do not provide exact address details until shortly before the viewing. However, we will be happy to provide you with further information at any time.
Our website: www.breamimmobilien.de

More details
Living space
287 m²
Land area
3.600 m²
Number of rooms
7.5
Number of bedrooms
5.5
Number of bathrooms
3
Number of balconies
1
Number of terraces
1
Number of parking spaces
5
Number of residential units
3
Number of commercial units
1
Granny flat
1
Number of floors
2
Heating type
Central heating
Energy source
Gas
Energy source
Wood
Garage parking spaces
5
Carport parking spaces
5
Available from
nach Absprache
Energy certificate
A+
A
B
C
D
E
F
G
H
0
25
50
75
100
125
150
175
200
225
>250
452 kWh
Certificate type
Demand
Valid until
13.10.2035
Primary energy source
Gas
Heating type
Central heating
Year of construction
1896
Value class
H
Demand
451,90 kWh/(m²·a)
Equipment
  • Category: Standard
  • Garden use
Contact
Company
Bream Immobilien
Phone
00491791107658
00491791107658
Direct enquiry

* Required fields