Sprung zum Inhalt

TRADITION DESIGN NATURE – new projected stone house with pool in the middle of an olive grove, near Ragusa, Sicily

Object details
Object ID
100379B-FfF
Object type
Ferienhaus
Purchase or rent
Purchase
Year of construction
2025
State
Projektiert
Prices
Purchase price
380.000,00 €
Outside fee
no commission for buyer

Description

‘La dolce vita’ celebrates pleasure, conviviality and a connection with Italian culture. This newly planned house, designed by a renowned Sicilian architect couple, offers professional on-site support. The combination of traditional charm and modern comfort makes it a unique retreat, ideal for enjoying the peace and beauty of nature - perfect as a holiday home or residence.
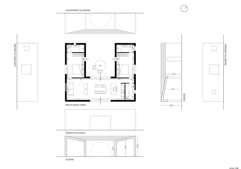
The house, nestled in a picturesque olive grove, combines traditional architecture with contemporary amenities. The façade with rustic stone walls and terracotta roofs blends harmoniously into the landscape. Large windows offer breathtaking views of the rolling hills and allow nature to flow inside. The open-plan living areas could be modernised by arrangement. A highlight is the outdoor area with a newly built pool, surrounded by shady olive trees - ideal for relaxing. The spacious terrace is ideal for barbecues and offers a fantastic view of the Sicilian sunsets.

Location

Donnagona is a hamlet in the municipality of Chiaramonte Gulfi, in the province of Ragusa, in the region of Sicily. The village of Donnagona is located 5 kilometres from the town of Chiaramonte Gulfi. It is a small settlement with around 140 inhabitants, most of whom work in agriculture. Chiaramonte Gulfi is 95 km from Catania, 76 km from Syracuse and 21 km from Ragusa (to whose province it belongs). The village lies at an altitude of 668 metres above sea level.
The region's main crops include fruit, vegetables, almonds and olives. Pig farming is also widespread, with the pork being processed into traditional cured meats, especially sausages. The Mazzarrone grapes grown in the Chiaramonte Gulfi area enjoy the status of a protected geographical indication (PGI). The grapes intended for wine production are also used for the production of Cerasuolo di Vittoria, a wine with a DOCG controlled and guaranteed designation of origin.
The Chiaramonte Gulfi area is also rich in olive groves and olive mills belonging to the ‘Consorzio D.O.P. Monti Iblei’. This consortium guarantees and protects the excellent quality of the extra virgin olive oil produced in the Hyblaean Mountains. The local olive oil has received numerous international awards, confirming its status as one of the best olive oils in the world.

Equipment

The equipment and design includes, among other things:
- absolutely quiet 4000m2 dreamlike property,
- house surrounded by centuries olive trees,
- approx. 40 minutes by car to the beach,
- approx. 10 minutes by car to the next supermarket,
- house designed by a renowned Sicilian architect couple,
- approx. 90m2 living space,
- modern, sustainable architecture inspired by the tradition of the region,
- spacious, open-plan design,
- internal layout can be modified,
- large floor-to-ceiling wooden windows?
- spacious terrace,
- large 15x3m swimming pool,
- high-quality floor coverings,
- modern bathroom,
- heating,
- ready to move in approx. 12 months after planning permission has been granted,
- Energy certificate will be issued

The finishes included in the price will be similar to the materials indicated in the moodboards. Any choices of materials different from those indicated will be calculated separately.

Other

This property is offered free of buyer's commission. We have concluded a commission contract with the seller.
Please understand that we will not provide exact address details until shortly before the viewing in order to protect the residents. All information in this exposé is based on the information provided by the owner/seller or co-operation partner. However, we will be happy to provide you with further information at any time.
Our website: www.breamimmobilien.de

More details
Living space
90 m²
Land area
4.000 m²
Number of rooms
3
Number of bedrooms
3
Number of bathrooms
1
Number of terraces
3
Equipment
  • Category: Upscale
  • Garden use
  • Swimmingpool
  • Senior friendly
Contact
Company
Bream Immobilien
Phone
00491721470535
00491721470535
Direct enquiry

* Required fields