Sprung zum Inhalt

TRADITION DESIGN NATUR – projektiertes Steinhaus mit Pool mitten im Olivenhain Nähe Ragusa, Sizilien

Objekt-Details
Objekt-ID
100379B-FfF
Objektart
Ferienhaus
Kauf oder Miete
Kauf
Baujahr
2025
Zustand
Projektiert
Preise
Kaufpreis
380.000,00 €
Außencourtage
keine Provision für Käufer/in

Beschreibung

AUF WUNSCH STELLEN WIR DEN KONTAKT ZU DEN EIGENTÜMERN UND DEN ARCHITEKTEN HER.

„La dolce vita“ feiert Genuss, Geselligkeit und die Verbundenheit mit der italienischen Kultur. Dieses neu geplante Haus, entworfen von einem renommierten sizilianischen Architektenpaar, bietet professionelle Betreuung vor Ort. Die Kombination aus traditionellem Charme und modernem Komfort macht es zu einem einzigartigen Rückzugsort, ideal für die Ruhe und Schönheit der Natur – perfekt als Ferienhaus oder Wohnsitz.
Das Haus, eingebettet in einen malerischen Olivenhain, vereint traditionelle Architektur mit zeitgemäßen Annehmlichkeiten. Die Fassade mit rustikalen Steinmauern und Terrakottadächern fügt sich harmonisch in die Landschaft ein. Große Fenster bieten einen atemberaubenden Blick auf die sanften Hügel und lassen die Natur ins Innere strömen.
Die offenen Wohnbereiche könnten modern nach Vereinbarung eingerichtet werden. Ein Highlight ist der Außenbereich mit einem neugebauten Pool, umgeben von schattenspendenden Olivenbäumen – ideal zum Entspannen. Die großzügige Terrasse lädt zu Grillabenden ein und bietet einen traumhaften Blick auf die sizilianischen Sonnenuntergänge.

Lage

Donnagona ist ein Weiler in der Gemeinde Chiaramonte Gulfi, in der Provinz Ragusa, in der Region Sizilien. Das Dorf Donnagona liegt 5 km von der Stadt Chiaramonte Gulfi entfernt. Es ist eine kleine Siedlung mit etwa 140 Einwohnern, von denen die meisten in der Landwirtschaft tätig sind. Chiaramonte Gulfi ist 95 km von Catania, 76 km von Syrakus und 21 km von Ragusa (zu dessen Provinz es gehört) entfernt. Der Ort liegt auf einer Höhe von 668 Metern über dem Meeresspiegel.
Zu den wichtigsten Anbauprodukten der Region gehören Obst, Gemüse, Mandeln und Oliven. Auch die Schweinezucht ist weit verbreitet, wobei das Schweinefleisch zu traditionellen Wurstwaren verarbeitet wird, vor allem zu Wurst. Die Mazzarrone-Trauben, die im Gebiet von Chiaramonte Gulfi angebaut werden, genießen den Status einer geschützten geografischen Angabe GGA. Die Trauben, die für die Weinherstellung bestimmt sind, werden auch für die Herstellung des Cerasuolo di Vittoria verwendet, einem Wein mit kontrollierter und garantierter Ursprungsbezeichnung DOCG.
Das Gebiet von Chiaramonte Gulfi ist auch reich an Olivenhainen und Olivenmühlen, die dem „Consorzio D.O.P. Monti Iblei“ angehören. Dieses Konsortium gewährleistet und schützt die hervorragende Qualität des in den Hyblaeischen Bergen produzierten nativen Olivenöls extra. Das hiesige Olivenöl hat zahlreiche internationale Auszeichnungen erhalten, die seinen Status als eines der besten Olivenöle der Welt bestätigen.

Ausstattung

Die Ausstattung und Gestaltung umfasst u.a.:

AUF WUNSCH STELLEN WIR DEN KONTAKT ZU DEN EIGENTÜMERN UND DEN ARCHITEKTEN HER.

- absolut ruhiges 4000m2 traumhaftes Grundstück,
- Haus umgeben von jahrhundertealten Olivenbäumen,
- ca. 40 Autominuten zum Strand,
- ca. 10 Minuten mit dem Auto zum nächsten Supermarkt,
- Haus entworfen von einem renommierten sizilianischen Architektenpaar,
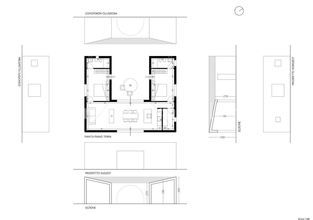
- ca. 90m2 Wohnfläche,
- moderne, nachhaltige Architektur, inspiriert von der Tradition der Region,
- großzügige, offene Raumaufteilung,
- Innenaufteilung kann verändert werden,
- große, raumhohe Holzfenster,
- großzügige Terrasse,
- großes Schwimmbad 15x3m,
- hochwertige Bodenbeläge,
- modernes Bad,
- Heizung,
- bezugsfertig ca. 12 Monate nach Erteilung der Baugenehmigung,
- Energieausweis wird erstellt

Die im Preis enthaltenen Ausstattungen entsprechen den in den Moodboards angegebenen Materialien. Eine davon abweichende Materialauswahl wird gesondert berechnet.

Sonstiges

Dieses Objekt wird käuferprovisionsfrei angeboten. Wir haben einen Provisionsvertrag mit dem Verkäufer abgeschlossen.
Bitte haben Sie Verständnis, genaue Adressangaben geben wir zum Schutz der Bewohner erst kurz vor der Besichtigung bekannt. Alle Angaben in diesem Exposé beruhen auf den Auskünften des Eigentümers / Verkäufers bzw. Kooperationspartners. Gerne stehen wir Ihnen jedoch jederzeit für weitere Informationen zur Verfügung.
Unsere Website: www.breamimmobilien.de

Weitere Details
Wohnfläche
90 m²
Grundstücksfläche
4.000 m²
Anzahl Zimmer
3
Anzahl Schlafzimmer
3
Anzahl Badezimmer
1
Anzahl Terrassen
3
Ausstattung
  • Kategorie: Gehoben
  • Gartennutzung
  • Swimmingpool
  • Seniorengerecht
Kontakt
Firma
Bream Immobilien
Telefon
00491721470535
00491721470535
Direktanfrage

* Pflichtfelder