Sprung zum Inhalt

SILENCE – NATURE – WATER – idyllic 4 bedroom detached house with dream plot in Berlin-Kladow (Sold)

Object details
Object ID
100217-BfF
Object type
Single family house
Purchase or rent
Purchase / Sold
Year of construction
1984
State
Modernized

Description

Do you love the peace, the nature, the water? Then you are right here, because this idyllically located, beautiful house near the Groß Glienicker Lake is looking for a new owner!
Offered is a lovingly maintained, partially modernized, full basement detached house with granny apartment from 1984. The house is located in a quiet cul-de-sac on a gorgeous, 1285m2 large plot with a high-quality carport and a garden shed.
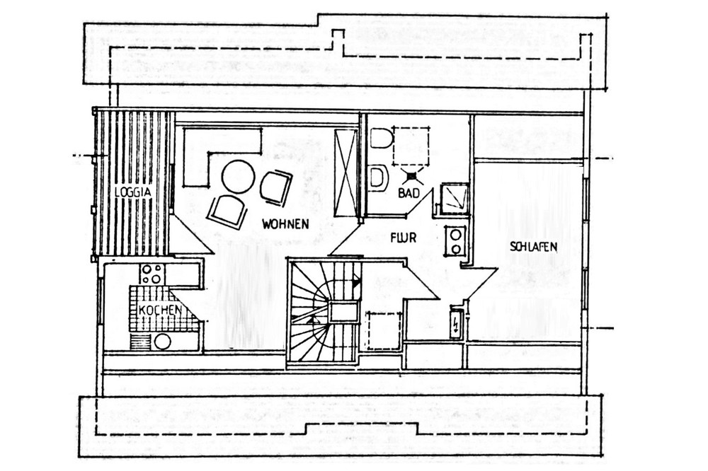
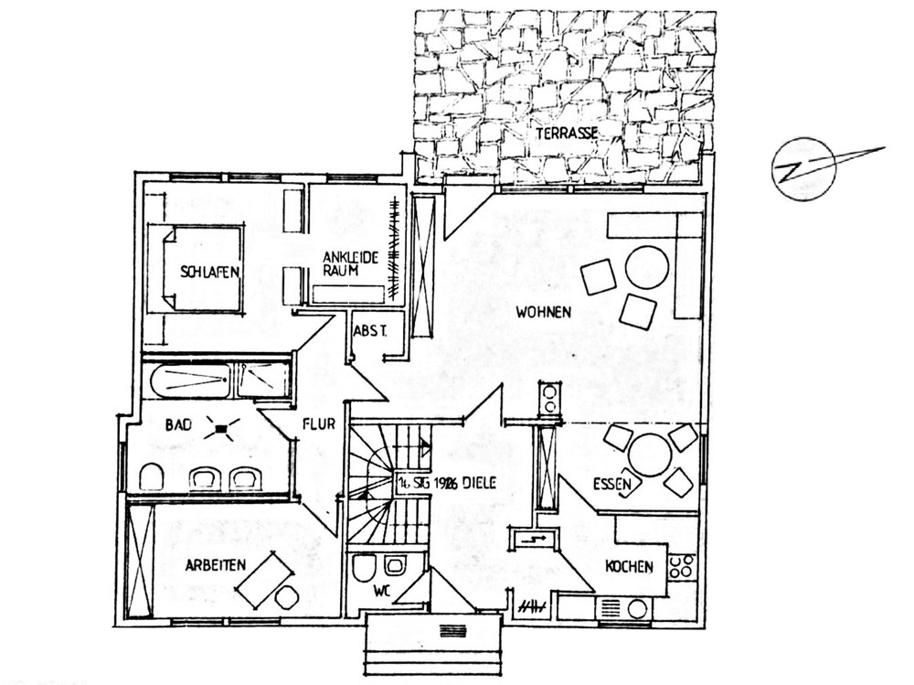
On the first floor, you enter through a spacious entrance area into a generous open-plan dining and living area, which offers a magnificent view to the terrace and garden. The first floor also features a separate kitchen, two bedrooms (one with a walk-in dressing room), a new guest toilet and a large daylight bathroom. A staircase leads to the attic, which could be used as a separate living unit if needed. There you will find a spacious living room with a covered southwest terrace (loggia) and adjoining kitchen, a new shower room with bidet, and a spacious bedroom.
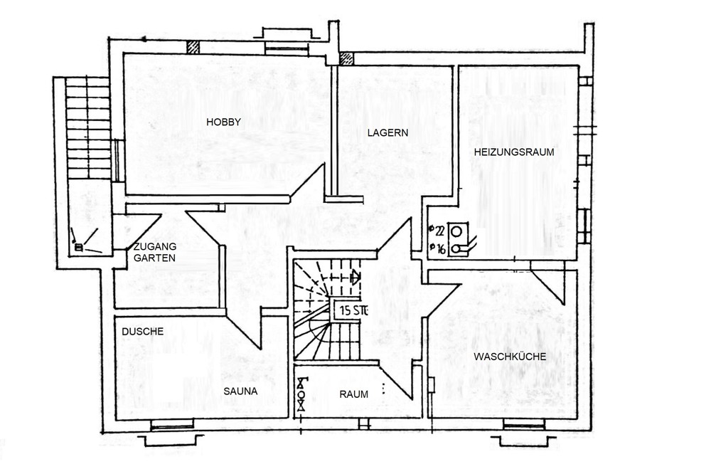
The heatable, dry, tiled basement with pleasant ceiling height and generous, window-like skylights offers enough space for guests, office or hobby. Here you will find, among other things, a practical laundry room, a boiler room with a modern gas boiler (2011) and a wellness area with a sauna and shower in mint condition.
From the basement a staircase leads to the natural and spacious garden. The spacious lawn, which is bordered by various bushes and hedges and impressive old trees, offers plenty of recreation space and privacy for a large family - this garden is a rarity that is not often found anymore.

Location

This house is quietly located in the Berlin district of Kladow in the south of Spandau. Kladow - a village-like Berlin district surrounded by forests and meadows on one side and the waters of the Havel and the Groß Glienicker Lake on the other - is characterized by its high quality of life due to many recreational opportunities such as water sports, horseback riding, cycling, hiking or golf. Various shopping facilities are available in Alt-Kladow with an extensive retail offer or in the first-class "EDEKA auf dem Flugplatz Gatow". Restaurants, doctors, various schools and daycare centers are available in the area. The well-known Golfclub Gatow can also be reached in a few minutes by car. With the bus X34 (direction Zool. Garten) and with the bus 134 (direction Rathaus Spandau, Fernbahnhof) one is very well connected to the city center or further destinations. By car it takes about 25 min. to Kurfürstendamm, to Potsdam it is also about 25 min. The location offers the charm of rural idyll with the proximity to the offerings of the city of Berlin and Potsdam.

Equipment

The fittings and decoration include:

- gorgeous, quiet residential location in beautiful neighborhood,
- extraordinary 1285m2 large property,
- Living space approx.160m2 (thereby terrace to 1/4, loggia to 1/2 included),
- approx. 10 minutes walking distance to the Groß Glienicker See,
- massive basement and partially modernized, insulated house in lightweight construction, built 1984,
- spacious living-dining area with large window front to terrace and garden,
- approx. 25.6m2 large, partially covered, unobstructed terrace,
- attic with separately usable granny apartment and approx. 7.2m2 southwest loggia,
- high-quality wooden staircase and doors,
- 3-fold insulated wooden windows with electric shutters,
- fireplace installation in the living area possible,
- modern gas boiler from 2011,
- underfloor heating,
- 2010 roof renewal with glazed tiles, new insulation and plastic roof windows,
- new guest toilet on the ground floor, new bathroom in the attic and shower in the basement,
- approx. 99m2 large, heatable cellar,
- Wellness room with new sauna and shower,
- laundry room and further storage rooms,
- large carport from 2010,
- lovingly landscaped dream garden with wooden garden house

Other

All information in this advertisement is without guarantee. Subject to change and advance sale. We ask for your understanding that for reasons of discretion we can only process inquiries that contain your full contact details. Exact address details we disclose for the protection of the residents only shortly before the viewing.
However, we will be happy to provide you with further information at any time. Please inquire about us and our real estate offer also on our website:
www.breamimmobilien.de

More details
Living space
160 m²
Land area
1.285 m²
Number of rooms
5.5
Number of bedrooms
4
Number of bathrooms
2.5
Number of balconies
1
Number of terraces
1
Cellar space
99 m²
Number of parking spaces
2
Granny flat
1
Number of floors
1
Heating type
Underfloor heating
Energy source
Gas
Carport parking spaces
2
Available from
immediately
Energy certificate
A+
A
B
C
D
E
F
G
H
0
25
50
75
100
125
150
175
200
225
>250
95 kWh
Certificate type
Verbrauch
Valid until
04.10.2030
Primary energy source
Gas
With hot water
Ja
Heating type
Underfloor heating
Year of construction
1984
Value class
C
Consumption
95,40 kWh/(m²·a)
Equipment
  • Category: Upscale
  • Garden use
  • Sauna
  • Guest toilet
Contact
Company
Bream Immobilien
Phone
+49 179 110 76 58
+49 179 110 76 58