Sprung zum Inhalt

ENERGY-EFFICIENT DOUBLE-DETACHED HOUSE WITH GARDEN – modern, ready-to-move-in new build in Berlin-Kladow

Object details
Object ID
100378S-BlL
Object type
Semi-detached house
Purchase or rent
Purchase
Year of construction
2026
State
Erstbezug
Prices
Purchase price
499.000,00 €
Outside fee
3.57 % of the purchase price of the property incl. 19% VAT.

Description

Your own home. Living in the countryside and close to the water, family-friendly, with good infrastructure and excellent amenities. Situated next to the Kladow village forest, a large garden, just a few steps to the village center and the forest and yet a very good infrastructure - what more could you need? On offer here is a beautiful plot of land, ideally divided into 2 x 480 sqm. From there you can easily and quickly walk through or along the village forest to the village center of Alt-Kladow, where you can go shopping, to the library, pharmacy, savings bank or post office. Doctors, restaurants, bakeries and ice cream parlors are all within walking distance. Development of the plot is possible in accordance with the surrounding buildings, with a GRZ of 0.17 and GFZ of 0.2. Electricity, gas, water supply, sewage and telephone are connected to the street/the existing building.
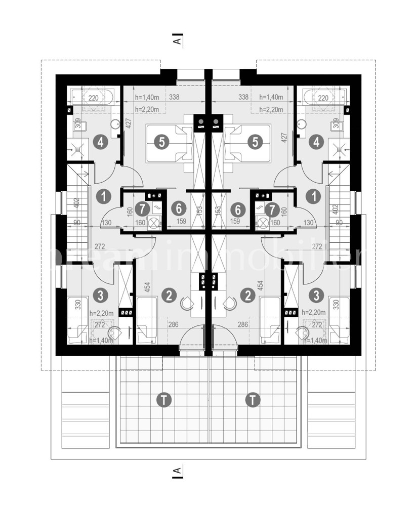
Welcome to your new dream home! Let us stroll together through the floors of this beautiful property, which combines functionality with style. On the first floor, you enter through an inviting entrance door into a bright hallway, which gives the first impression of spaciousness and light. Here you have enough space for a checkroom to store your jackets and shoes and those of your guests neatly. You can also enter the hallway directly from the garage. The open-plan living area is the heart of the house. Generous windows provide a pleasant daylight atmosphere, with space for a cozy sofa and coffee table, perfect for relaxing evenings with family and friends. The dining area is seamlessly connected to the living area and offers space for a large dining table. Here you can celebrate unforgettable meals and parties with your loved ones. The modern kitchen is functional and elegant, equipped with high-quality appliances. The integrated pantry is also very practical. Enjoy the benefits of an open-plan design that allows you to chat with your guests while cooking. A small guest WC completes your first floor. A beautiful, inviting, single-flight staircase takes you to the upper floor of your home. There you will find a spacious, bright bedroom. The private retreat offers you space for a large bed and personal design elements. You can enjoy the benefits of a separate dressing room. Here you can relax after a long day. In another spacious room, ideal for children or as a guest room, a French window with access to the large balcony creates a bright, friendly ambience. The bathroom is fitted with high-quality fittings and offers both a shower and a bathtub - perfect for a relaxing spa day at home. A second children's room or an office, as well as a utility room complete your living area on the upper floor. This home not only offers you stylish living, but also the flexibility to meet the needs of a modern family. The open plan design encourages togetherness and creates a warm, inviting atmosphere. Be inspired by this unique home. The house complies with an energy efficiency house standard 40. The extended offer would include floor slab, connections, building rights, an energy certificate will be provided.
Integrated electrical and sanitary system, fully installed heating and ventilation technology, air-to-water heat pump. Also optionally available is the "Smart Home Package", e.g. with Philips Hue lighting system, intelligent door lock and environmental sensors - as well as the "Green4Future Package", which includes an 8 kWp photovoltaic system, electricity storage, inverter and a wallbox for e-mobility.
Usable floor space: 129 sqm, living space: 110 sqm, floor plans can be individually modified.

Location

The property is located in a quiet residential street, dead end with turning hammer, in the Berlin district of Kladow, in the south of Spandau. You live here in a local recreation area: Lake Glienicke, the Gatow Golf Club, Lake Sacrow and the Kladow harbor with its beer gardens and small restaurants are easily accessible on foot or by bike. In a well-kept residential area, close to the water-rich nature, you will benefit from the family-friendly infrastructure as well as the good connection to the urban area with a direct connection to the metropolis of Berlin and the state capital Potsdam. The X34 bus (direction Zool. Garten) and the 134 bus (direction Rathaus Spandau, Fernbahnhof) provide excellent connections to the city center and other destinations. The Kurfürstendamm is about 25 minutes away by car, and Potsdam is also about 25 minutes away. The local Alt Kladow ferry pier takes day-trippers to the harbor and the surrounding area when the weather is nice. They can enjoy the beer gardens, restaurants and ice cream parlors on the promenade or take a stroll to one of the many bathing spots. Various shopping opportunities are available in Alt-Kladow or at the former Gatow airfield in well-stocked supermarkets or retail outlets. The village center of old Kladow can also be easily reached on foot along the adjacent Kladow village forest. Here you will find several ice cream parlors and restaurants, a library, a savings bank and various stores for everyday needs in a well-kept environment. There is good medical care via specialist practices and the Havelhöhe anthroposophical hospital. There are attractive playgrounds and sports fields for younger children. The well-known Gatow Golf Club is also just a few minutes' drive away. The location offers the charm of a rural idyll with proximity to the amenities of the cities of Berlin and Potsdam.

Equipment

The equipment and design includes, among other things:

GROUND FLOOR:
- Entrance area with checkroom,
- open-plan living/dining area with large windows,
- guest WC with modern sanitary facilities,
- pantry,
- garage,
- large terrace, partly covered

Upper floor:
- Large bedroom with dressing room,
- 2 further rooms as children's room, guest room or study,
- Bathroom with high-quality fittings, shower and bathtub,
- utility room/technical room
- large balcony

- Windows with triple glazing,
- high-quality floor coverings,
- energy efficiency house standard 40.
- The extended offer would include floor slab, connections, building rights,
An energy certificate will be issued.
- Usable area: 129 sqm, living area: 110 sqm, 25% terrace, 50% balcony.

- Ready to move in 5-8 months after planning permission has been granted.
- This is an example house, floor plans can be individually redesigned,
The quality of workmanship and individual wishes can be agreed with the company carrying out the work.

Technical standards:
- Energy efficiency house KfW40
- U-value outer shell: 0.12 W/m²K
- Timber frame construction
- CLT technology for stability & comfort
- Flat roof or pitched roof with EPDM membrane
- Gravity ventilation
- Water collection system (rainwater)

Optional additional packages:
Green4Future package (at extra cost):
- Photovoltaic system (8 kWp),
- storage, inverter,
- Wallbox/charging station for electric car
Smart Home package (optional):
- Philips Hue Smart Lighting,
- Intelligent door lock (app-controlled),
- Automated blinds,
- Environmental sensors for air quality


The broker's commission of 3.57% only on the property price of € 281,000

Other

The price quoted includes the plot of land on offer and the house offered and described here, with a starting price of approx. 214,000 € - depending on the development variant and the buyer's wishes, then ready to move in at a price of approx. 273,000 €, in modern prefabricated construction, excluding the development costs according to the manufacturer's specifications. Individual modification requests are not included. Details of the house and the plot have been provided by the manufacturer or owner and are not guaranteed. Subject to change and prior sale. Foundation and outdoor facilities (garden, terrace, access road, etc.) are not included in the offer - to be planned and booked as a separate service or commissioned separately, or as part of an all-round carefree package. The stated estate agent's commission only applies to the purchase price of the plot. As this is part of a larger plot of land to be built on with 2 semi-detached houses, the size and price of the plot may vary depending on the individual subdivision to be made. By making use of our brokerage services as an estate agent and / or broker, a brokerage contract is concluded on the basis of the data in this property exposé. The fee is earned and due as soon as the opportunity to conclude a purchase contract has been proven and the purchase contract has been concluded or the purchase contract has been brokered and concluded. As the end consumer, you have a 14-day right to cancel the brokerage contract. The broker's commission shown does not apply to the property price of € 281,000.
Please understand that we will not provide exact address details until shortly before the viewing in order to protect the residents. However, we will be happy to provide you with further information at any time.
Our website: www.breamimmobilien.de

More details
Living space
110 m²
Useful area
129 m²
Floor space ratio
0,17
Number of storeys
0,2
Land area
480 m²
Number of rooms
4
Number of bedrooms
3
Number of bathrooms
1
Number of sep. WC
1
Number of balconies
1
Number of terraces
1
Number of parking spaces
2
Number of floors
2
Heating type
Central heating
Heating type
Underfloor heating
Energy source
Air-source heat pump
Garage parking spaces
2
Available from
sofort
Equipment
  • Category: Upscale
  • Garden use
  • Guest toilet
Contact
Phone
00491729909292
00491729909292
Direct enquiry

* Required fields