Sprung zum Inhalt

VIEL RAUM FÜR INDIVIDUELLES WOHNEN – teilsanierter Vierseitenhof mit idyllischem Garten in Beelitz

Objekt-Details
Objekt-ID
100390A-BbB
Objektart
Bauernhaus
Kauf oder Miete
Kauf
Baujahr
1896
Zustand
Gepflegt
Preise
Kaufpreis
579.000,00 €
Außencourtage
3,57% des Kaufpreises inkl. 19% Mwst.

Beschreibung

Willkommen auf diesem ruhigen Vierseitenhof, welcher mit seinem historischen und authentischen Charme und großzügigen Flächen viel Raum für individuelle Nutzung und Wohnformen bietet. Im Wohnhaus haben Sie ausreichend Platz zur Unterbringung einer großen Familie, mehrerer Generationen und Gäste. Vielfältige Scheunen-, Stall- und Garagenflächen - insgesamt schätzungsweise ca. 1.400 m² - sowie die großzügige Fläche des allseits umschlossenen Hofes mit dem überdachten Eingangsbereich und dem elektrischen Sektionaltor als Zugang stehen für Hobby, Gewerbe, Lagerung, privaten Gebrauch oder andere kreative Nutzungskonzepte zur Verfügung. In der modern gestalteten, separaten Gewerbeeinheit von ca. 32qm mit Toilette und Pantryküche, mehreren Fenstern zur Straße hin und separatem Eingang können Sie verschiedenen beruflichen Tätigkeiten oder Büroarbeiten nachgehen.

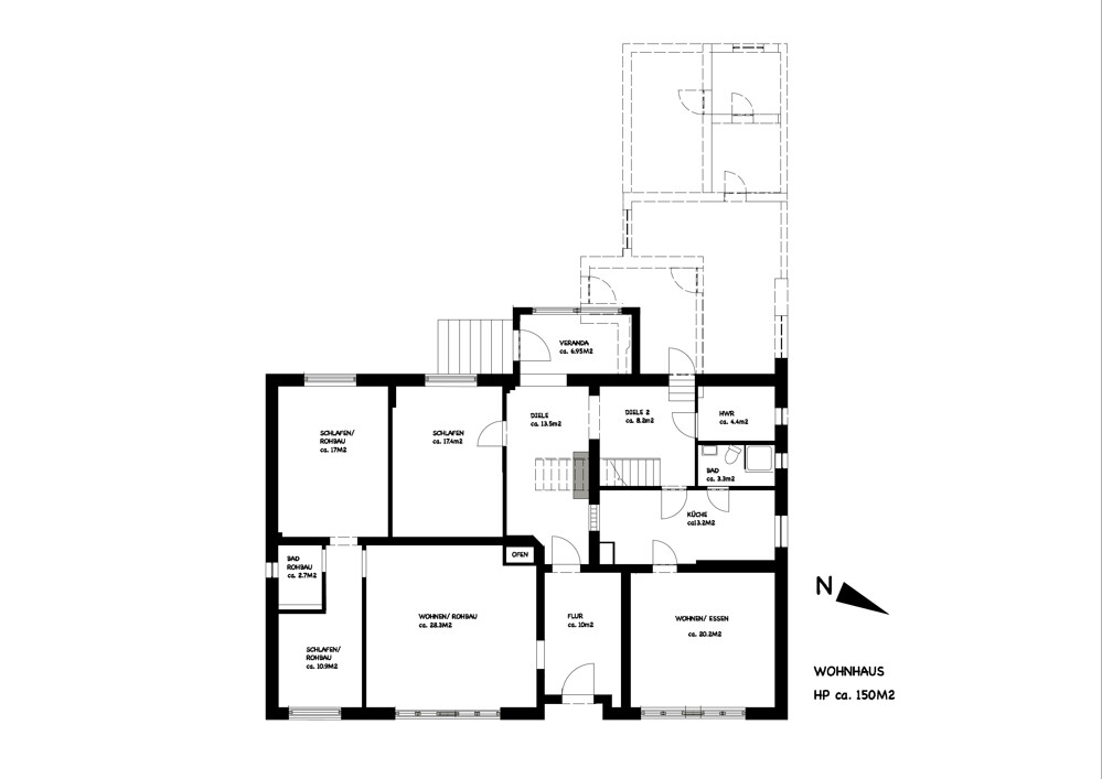
Das im Jahr 1896 erbaute Wohnhaus strahlt eine behagliche Atmosphäre aus. Auf insgesamt ca. 287qm Wohnfläche finden Sie hier drei Küchen und drei Bäder und eine Menge Stauraum sowie ein Keller. Es sind 2-3 Wohneinheiten denkbar. Die Modernisierung des Hauses wurde im Lauf der Jahre schrittweise angegangen, ohne den ursprünglichen Charakter aufzugeben. Die rechte Hälfte des Hochparterres und des Dachgeschosses sind vollständig als zusammenhängender Wohnraum mit innenliegender Treppe gestaltet. Der linke Teil des Hochparterres mit 3 Zimmern und einem Bad befindet sich in Sanierung und daher im Rohbau. Elektrik und Wasseranschlüsse sind schon gelegt, die Gestaltung des Bodens (Dielen) und der Wände/ Decken stehen noch aus. Von der Diele im Hochparterre im Wohnhaus führen ein paar Treppenstufen hinab ins Erdeschoss eines seitenflügelartigen Anbaus. Dort befindet sich im Erdgeschoss ein Flur, ein Küchen- Essraum mit zwei Speisekammern und Zugang zum Heizraum.
Die Solaranlage mit Speicher sorgt für nachhaltige Energie und trägt zur Unabhängigkeit bei.

Das Grundstück umfasst ca. 3.600 m². Das Gartenland hinter dem Vierseitenhof besteht größtenteils aus Wiese und ein paar Obstbäumen. Der Weitblick über die Felder mit Blick auf den Dorfkern mit Kirche ist sehr idyllisch und lädt zum Entspannen, Gärtnern oder zur Tierhaltung ein.

Die ruhige Lage in Wittbrietzen, nur wenige Minuten von Beelitz und 30 Minuten von Potsdam entfernt, verbindet die Vorteile des Landlebens mit der Nähe zur Stadt.

Lage

Die Immobilie in der Neubauernstraße befindet sich am Ortsrand in Wittbrietzen, einem charmanten Ortsteil von Beelitz, der Spargelstadt, im Landkreis Potsdam-Mittelmark unweit von Potsdam. Hier genießen Sie eine harmonische Kombination aus ländlicher Idylle und einer gut ausgebauten Infrastruktur.
Wittbrietzen ist bekannt für seine freundliche Gemeinschaft, gepflegte Natur und eine Vielzahl an Freizeitmöglichkeiten wie Reiten, Fußball und andere Vereinstätigkeiten. Im Ort finden Sie einen kleinen Supermarkt mit Bäckerei und Postfiliale sowie einen Kindergarten – alles bequem zu Fuß oder mit dem Fahrrad erreichbar. Für größere Einkäufe und weitere Schulen und Dienstleistungen sind die nahegelegenen Orte Beelitz, Werder (Havel) und Potsdam schnell erreichbar.

Entfernungen und Verkehrsanbindung:
- Stadt Beelitz: ca. 8 km,
- Bahnhof Beelitz-Elsholz: ca. 3,6 km – regelmäßige Zugverbindungen nach Potsdam und Berlin,
- Landeshauptstadt Potsdam: ca. 35 km – ca. 30 Minuten mit dem Auto oder öffentlichen Verkehrsmitteln erreichbar,
- Berlin: ca. 70 km – in etwa 1 Stunde über die Autobahn A10 und A115 oder per Bahn

Ausstattung

Die Ausstattung und Gestaltung umfasst u.a.:

WOHNHAUS HP & DG:
- 7,5 Zimmer auf ca. 251qm Wohnfläche,
- BJ 1896, voll unterkellert,
- 3 funktionstüchtige Bäder, 1 Bad im Rohbau,
- 3 Küchen,
- Ausbau DG Wohnhaus und Renovierung inkl. Küche Bad 1986/ 1989,
- neue Kunststofffenster ca. 1999,
- Dach Neudeckung ca. 2005, 2x neue Dachfenster ca. 2010,
- neue Haustür ca. 2023,
- Modernisierung Elektrik, Wände, Bad, Küche EG re. 2018/ 2024,
- Modernisierung EG li. in Arbeit (Rohbau, Elektrik verlegt aber noch nicht angeschlossen) seit 2024,
- Energieausweis ist in Erstellung u. wird vorgelegt,

SEITENFLÜGEL EG:
- Flur, Küchen-Essraum, zwei Speisekammern,
- ca. 36qm Wohnfläche,
- Zugang vom Wohnhaus und vom Hof,
- Heizraum mit Heizung Zentralheizung Gas/ Holzkombination von ca. 2010,
- Dach erneuert ca. 2010,

GEWERBE EG:
- neu ausgebaut ca. 2010,
- Flur, Pantryküche, WC, großer Raum mit Fenster zur Straße,
- ca. 32qm,
- eigener Eingang von der Straße,

GRUNDSTÜCK:
- gesamt ca. 3600qm,
- davon schätzungsweise ca. 1600qm im Innenbereich (mit den Gebäuden) und schätzungsweise ca. 2000qm im Aussenbereich als Gartenland,

SCHEUNEN-, STALL-, NEBENGEBÄUDE:
- insgesamt schätzungsweise ca. 1400qm,
- Stall li. Scheune Hofseite Dach erneuert ca. 2001,
- Stall re. Dach erneuert ca. 2010,
- Sektionaltor & Pforte elektrisch neu ca. 2017,
- Garage und Tor li. Elektrik ca. 2010,
- Garagentor Stall re. ca. 2014,
- Carport komplett neu ca. 2015,
- Solaranlage von Enpal auf Dach: 24 Panele und 10 kW-Speicher zur Stromgewinnung per Mietvertrag auf 20 Jahre seit 2021,

Sonstiges

Durch die Inanspruchnahme unserer Maklertätigkeit als Nachweis- und / oder Vermittlungsmakler kommt ein Maklervertrag auf Basis der Daten dieses Objektexposés zustande. Verdient und fällig ist das Honorar, sobald die Gelegenheit zum Abschluss eines Kaufvertrages nachgewiesen und der Kaufvertrag geschlossen worden ist oder der Kaufvertrag vermittelt und geschlossen worden ist. Als Endverbraucher haben Sie ein 14-tägiges Widerrufsrecht des Maklervertrages. Alle Angaben beruhen auf den Auskünften des Eigentümers / Verkäufers bzw. Kooperationspartners.
Bitte haben Sie Verständnis, genaue Adressangaben geben wir zum Schutz der Bewohner erst kurz vor der Besichtigung bekannt. Gerne stehen wir Ihnen jedoch jederzeit für weitere Informationen zur Verfügung.
Unsere Website: www.breamimmobilien.de

Weitere Details
Wohnfläche
287 m²
Grundstücksfläche
3.600 m²
Anzahl Zimmer
7.5
Anzahl Schlafzimmer
5.5
Anzahl Badezimmer
3
Anzahl Balkone
1
Anzahl Terrassen
1
Anzahl Stellplätze
5
Anzahl Wohneinheiten
3
Anzahl Gewerbeeinheiten
1
Einliegerwohnung
1
Anzahl Etagen
2
Heizungsart
Zentralheizung
Energieträger
Gas
Energieträger
Holz
Garagen-Stellplätze
5
Carport-Stellplätze
5
Verfügbar ab
nach Absprache
Energieausweis
A+
A
B
C
D
E
F
G
H
0
25
50
75
100
125
150
175
200
225
>250
452 kWh
Ausweistyp
Bedarf
Gültig bis
13.10.2035
Primärer Energieträger
Gas
Heizungsart
Zentralheizung
Baujahr
1896
Wertklasse
H
Bedarf
451,90 kWh/(m²·a)
Ausstattung
  • Kategorie: Standard
  • Gartennutzung
Kontakt
Firma
Bream Immobilien
Telefon
00491791107658
00491791107658
Direktanfrage

* Pflichtfelder