Sprung zum Inhalt

INVESTMENT IN DIE ZUKUNFT -seniorengerechte 2,5-Zimmer-Wohnung mit Balkon in Berlin-Schmargendorf (Verkauft)

Objekt-Details
Objekt-ID
100368-BbB
Objektart
Etagenwohnung
Kauf oder Miete
Kauf / Verkauft
Zustand
Gepflegt

Beschreibung

Diese an ein sehr zuverlässiges, älteres Paar vermietete helle und gepflegte Wohnung wird als Kapitalanlage angeboten und eignet sich insbesondere durch die exzellente und ruhige Lage zwischen Grunewald und Ku'damm als langfristiges Investment mit großem Wertsteigerungspotential. Eine Selbstnutzung im Alter ist ebenfalls eine geeignete Perspektive.
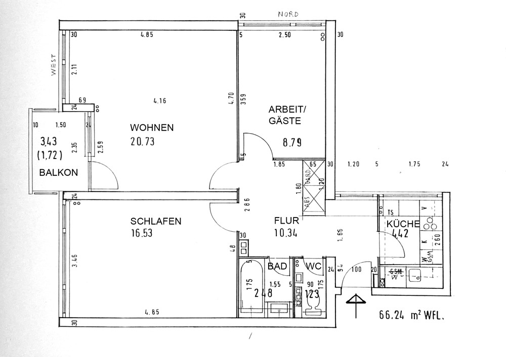
Über einen Fahrstuhl erreichen Sie bequem den 4. Stock. Die äusserst gut geschnittene und sehr helle Wohnung hat einen zentralen, wohnlichen Flur, welcher Platz für Schränke und Zugang zu allen weiteren Räumen bietet: Küche, Bad, separates WC, Wohnen, Schlafen und das kleine, dritte Zimmer, welches für Gäste, als Büro, Kinderzimmer oder zweites Schlafzimmer genutzt werden kann.
Viel Fensterfläche und ein Westbalkon mit Weitsicht über die Bäume bis zum Teufelsberg sorgen für ein Gefühl von Großzügigkeit, Freiheit, Ruhe und Entspannung. Das hell gestaltete und lichtdurchflutete Ambiente lassen die Wohnung modern und großzügig erscheinen.
Die Eigentümergemeinschaft besteht aus 63 Wohnungen und 5 Gewerbeeinheiten in zwei zusammengehörenden Häusern auf großem Grundstück, Parkplatz, Fahrradabstellplatz und einer Tiefgarage. Das Gemeinschaftseigentum wird Schritt für Schritt modernisiert, ein beachtlicher Teil der Bewohner sind selbst Eigentümer. Ein fester PKW-Stellplatz gehört nicht zu diesem Angebot, jedoch findet man im Hof Parkplätze oder in der Straße Parkmöglichkeiten. Es gibt auch eine gepflegte Tiefgarage im Gemeinschaftseigentum, wo ab und zu mal ein Parkplatz zum Verkauf steht. Ein trockenes Kellerabteil ist der Wohnung zugeordnet.
Die Lage und Anbindung zwischen Grunewald mit viel Natur und Ruhe und dem Kurfürstendamm mit kulturellen Angeboten und Einkaufsmöglichkeiten ist excellent.
Besichtigung gerne auf Anfrage.

Lage

Das Objekt befindet sich im begehrten Stadtteil Schmargendorf nur wenige Schritte von Grunewald, bekannt durch große Gärten, edle Villen und Parkanlagen mit altem Baumbestand. Dennoch sind Sie in 10 Minuten zu Fuß am Kurfürstendamm, an der bekannten Schaubühne, wo Sie Kultur, Restaurants und Shoppingtouren im Herzen der Metropole genießen können. Die Anbindung an weitere Stadtteile oder Orte ausserhalb Berlins ist über diverse Buslinien, S-Bahn, den Fernbahnhof Bahnhof Zoo und die A100 excellent.
In der direkten Nachbarschaft befinden sich Cafés, Restaurants, Bäckereien, Supermärkte, Ärzte, Apotheken und das Martin-Luther-Krankenhaus. Der Wochenmarkt in der Charlottenbrunnerstraße lädt zweimal pro Woche zu einem gemütlichen Einkaufsbummel ein. Auch eine Auswahl von Schulen und Kitas findet sich im nahen Umkreis.
Dieser Standort vereint die Vorteile zweier vermeindlicher Gegensätze: ruhige Wohnlage, Ausblick ins Grüne, Erholungsgebiete vor der Tür und dennoch zentral in der City, fußläufig zu Kultur und Stadtleben.

Ausstattung

Die Ausstattung und Gestaltung umfasst u.a.:

- sehr helle, gepflegte Wohnung im 4. OG mit Westbalkon und Weitsicht,
- ältere, sehr zuverlässige Mieter,
- Fahrstuhl,
- guter Schnitt, großzügige Fensterflächen,
- ruhige und dennoch sehr zentrale Lage mit guter Anbindung,
- fußläufig zum Kurfürstendamm, Hubertussee, Martin-Luther-Krankenhaus, Grunewald,
- Baujahr 1964,
- Gasheizung,
- 2023/ 2024 Modernisierung der Heizkreise in Vorbereitung auf ein modernes Heizungssystem,
- ca. 2013 neue Isolierglasfenster,
- großzügiges, begrüntes Grundstück,
- Eigentümergemeinschaft mit 63 Wohnungen, 5 Gewerbeeinheiten, Keller, TG und Parkplätze,
- Fahrradstellplätze, kleiner Spielplatz, Grünanlage,
- ein trockenes Kellerabteil gehört zum Angebot,
- freie Parkmöglichkeit auf dem Hof,
- Warmmiete mtl. € 725,80,
- Hausgeld inkl. Rücklagen mtl. € 350,21,

Sonstiges

Dieses Objekt wird provisionsfrei angeboten.
Bitte haben Sie Verständnis, weitere Innenaufnahmen haben wir zum Schutz der Mieter hier nicht veröffentlicht. Gerne stehen wir Ihnen jedoch jederzeit für weitere Informationen und für eine Besichtigung vor Ort zur Verfügung.
Unsere Website: www.breamimmobilien.de

Weitere Details
Wohnfläche
67 m²
Anzahl Zimmer
2.5
Anzahl Schlafzimmer
1.5
Anzahl Badezimmer
1
Anzahl sep. WC
1
Anzahl Balkone
1
Etage
4 von 8
Heizungsart
Zentralheizung
Energieträger
Gas
Personenaufzug
Ja
Verfügbar ab
nach Absprache
Energieausweis
A+
A
B
C
D
E
F
G
H
0
25
50
75
100
125
150
175
200
225
>250
174 kWh
Ausweistyp
Verbrauch
Gültig bis
24.04.2028
Primärer Energieträger
Gas
Heizungsart
Zentralheizung
Baujahr
1964
Wertklasse
F
Verbrauch
173,80 kWh/(m²·a)
Ausstattung
  • Gartennutzung
  • Seniorengerecht
Kontakt
Firma
Bream Immobilien
Telefon
+49 179 110 76 58
00491791107658