Sprung zum Inhalt

Haus sucht Familie — provisionsfreies, herrschaftliches Einfamilienhaus nahe Havel in Berlin-Gatow (Verkauft)

Objekt-Details
Objekt-ID
100101V-BbB
Objektart
Einfamilienhaus
Kauf oder Miete
Kauf / Verkauft
Baujahr
1936
Zustand
Modernisiert

Beschreibung

Dieses freistehende und großzügige Einfamilienhaus, gebaut in den 30-er Jahren des vorigen Jahrhunderts, überzeugt durch seine Einzigartigkeit und lässt das Herz jedes Altbauliebhabers höher schlagen. Der Charme historischer Bauelemente und original erhaltener Ausstattungsdetails vereint sich mit der Klarheit der Raumaufteilung und der Funktionalität der 1930er-Jahre auf wunderbare Weise: hohe Decken, Fischgeräteparkett, teils original Fliesen, offener, funktionstüchtiger Art-Deko-Kamin, Wandvertäfelung im Herrenzimmer, Stuck in mehreren Schlaf- und Wohnräumen sowie im Eingangsbereich und Gäste-WC, eine funktionierende, historische Klingelanlage für Dienstboten in allen Zimmern, originale Holztüren, Lichtschalter, Art-Deko-Türklinken, Schiebetüren mit Glaseinsätzen, teilweise Holzkastenfenster, Holzrolläden mit Einbruchsicherung, Luftschutzkeller, Garage mit Reparaturschacht, Panikbeleuchtung außen etc. sind erhalten geblieben und erzählen von einer anderen Zeit.

Das mittlerweile liebevoll modernisierte, voll unterkellerte Einfamilienhaus mit drei Etagen eignet sich besonders für eine große Familie, Paare mit erweitertem Platzanspruch oder als Mehrgenerationenhaus. Auch die Verbindung von Büro und Wohnen finden hier Ihren Platz. Das weitläufige und sehr ruhige Grundstück bietet vielseitige Gestaltungsmöglichkeiten.

Das Haus wurde 2008 - 2016 schrittweise modernisiert und saniert. Die komplette Erneuerung der Elektrik, der Zu- und Abwasserleitungen und der Bäder wurde vorgenommen. Ein schneller Internetanschluss mit bis 200 MBit ist angelegt und die Fassade, Dachrinnen und Dachsockel sowie die hintere Gaube erneuert. Dabei stand stets die hohe Qualität und Natürlichkeit der verwendeten Materialien wie atmungsaktive Farben und mineralischer Putz im Vordergrund. Die neuen Isolierglasfenster im Erdgeschoss und Treppenhaus wurden mit Sicherheitsglas versehen.

Von der ruhigen Anliegerstraße her erreichen Sie über das Gartentor oder die Einfahrt das Grundstück und die Garage. Wenige Treppenstufen führen zum Eingang, welcher in einen Flur mit Garderobenraum führt. Eine weitere Tür trennt den Eingangsbereich vom Wohnbereich. Das wohnliche Treppenhaus mit originaler Holztreppe bildet das Herz des Hauses und führt in alle weiteren Geschosse. Vom Flur gelangen Sie in das Herrenzimmer, das Wohnzimmer mit offenem Kamin, die Gäste-Toilette und in die großzügige Wohnküche mit weiterem Kaminanschluss, mit Speisekammer und wintergartenähnlichem Essbereich. Von dort gelangt man über eine Glastür direkt zur sonnigen Aussenterrasse und in den Garten. Rundum genießen Sie in alle Richtungen einen schönen Ausblick ins Grüne und die ruhige Umgebung.
Im 1. OG befinden sich das moderne Tageslichtbad mit Wanne, Bidet und Dusche sowie 4 Schlafzimmer, ein Hauswirtschaftsraum mit Platz für Waschmaschine und Trockner und ein großer Balkon.
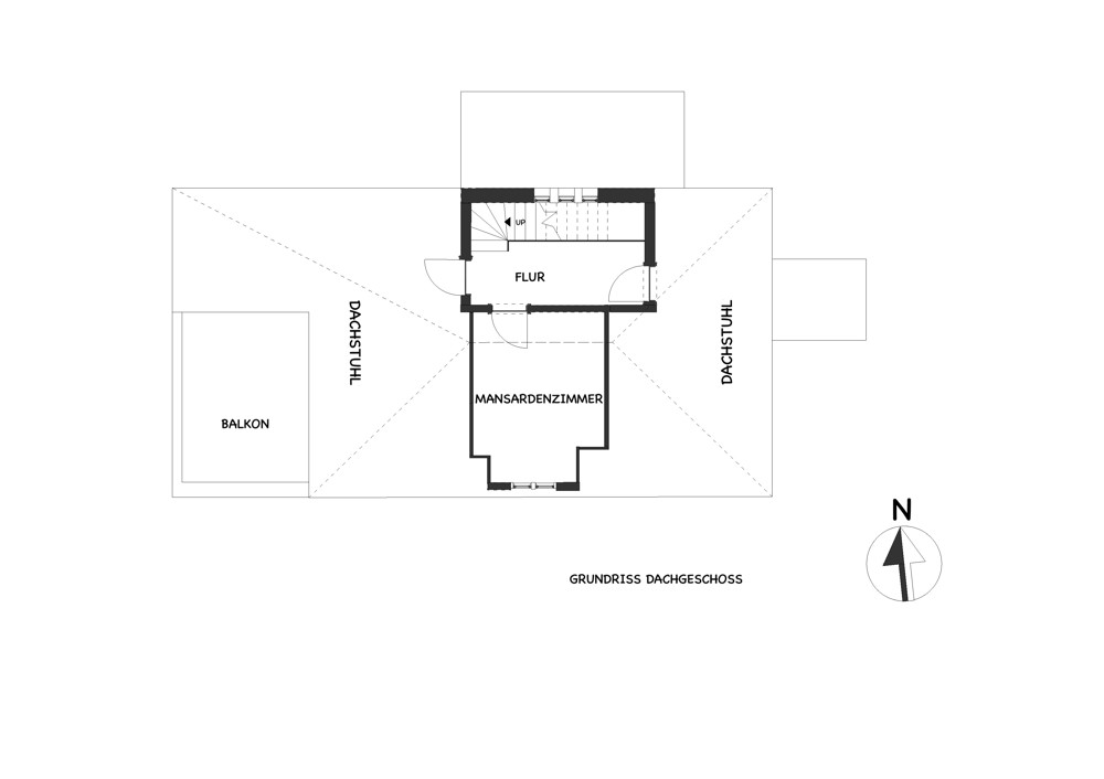
Das Dachgeschoss bietet ein kleines, separates Mansardenzimmer mit einer Gaube. Beidseitig davon gibt es noch unausgebauten Dachraum mit Ausbaupotenzial.

Das Kellergeschoss erstreckt sich über die ganze Hausgrundfläche. Der Zugang erfolgt vom Flur im Erdgeschoss oder von außen vom Garten. Nebst einer Werkstatt, Vorratsraum und einem originalen Luftschutzbunker aus den 30-er Jahren befindet sich hier auch der Heizungsraum mit Wasseranschluss.

Kontaktieren Sie uns und erfahren Sie mehr über diese einzigartige Gelegenheit.

Lage

Das Einfamilienhaus liegt direkt im Ortsteil Gatow im Süden von Spandau auf der Haveldüne, einem langgestreckten Hügelzug entlang der weiten Flusslandschaft. In wenigen Minuten erreichen Sie einladende Spazierwege, Radwege oder Badestellen. Auch Restaurants, Schulen, Kita und Einkaufsmöglichkeiten sind in der unmittelbaren, dörflichen Umgebung vorhanden.
Mit dem Bus X34 (Richtung Zool. Garten) und mit dem Bus 134 (Richtung Rathaus Spandau, Fernbahnhof) ist man sehr gut an die Innenstadt angebunden. Die Lage bietet den Charme ländlicher Idylle mit der Nähe zu den Angeboten der Stadt Berlin.
Für Freizeit- und Erholungsvielfalt bietet die Havel und Ihre Umgebung die besten Voraussetzungen:
In unmittelbarer Umgebung befinden sich die Gatower Heide, die Rieselfelder, die Döberitzer Heide mit der ca. 90 ha großen, geplanten Parklandschaft "Landstadt Gatow", der Wannsee und die Gewässer Potsdams mit den historischen Prachtbauten und Schlössern (Weltkulturerbe).
Auch Wassersportfreunde kommen hier auf ihre Kosten. Zahlreiche Wassersport- und Segelclubs oder Marinas säumen die Ufer. Der Berliner Golf Club Gatow liegt ebenfalls vor der Tür.

Sie wohnen Mitten im Grünen und sind durch ausgezeichnete Verkehrsverbindungen gleichzeitig nah an der City. Mit dem Auto fährt man ca. 25 min. zum Kurfürstendamm, nach Potsdam sind es ebenfalls ca. 25 min.

Ausstattung

Die Ausstattung und Gestaltung umfassen u.a.:

- besondere Gelegenheit: provisionsfreier Erwerb durch Versteigerung mit individueller Maklerbetreuung,
- sehr gute Dokumentation mit Innenfotos, vollumfängliches offizielles Gutachten,
- ruhiges Grundstück nahe der Havel 1473qm,
- großzügiges und gepflegtes 8-Zimmer-Einfamilienhaus aus den 1930er- Jahren,
- 4 Schlafzimmer und ein Mansardenzimmer,
- teilausgebautes Dachgeschoss mit Ausbaupotential,
- voll unterkellert mit Luftschutzkeller,
- Garage mit Reparaturgrube,
- Erhalt vieler 30er-Jahre Originaldetails (siehe Beschreibung oben),
- umfassende Modernisierung 2008-2016: sämtliche Elektroleitungen, Trinkwasserleitungen, Abwasserleitungen, neue Internetleitung mit bis zu 200 MBit, Bädersanierung, Fassade,
- ausschließliche Verwendung von natürlichen Farben und Putz innen und außen zur Gewährleistung von natürlicher Feuchteregulierung und Luftzirkulation,
- Öl-Zentralheizung ständig vorschriftsmässig gewartet,
- Einbruchsschutz durch Alarmanlage, Sicherheitsglas VSG 44.2 P2A (Verbundsicherheitsglas 4mm+4mm Scheibe), Holzjalousien mit Verriegelung und Vergitterung der Kellerfenster,
- Wohnküche mit Ausgang zur sonnigen Terrasse,
- Einbauküche,
- Kaminanschluss in Küche,
- Wohnzimmer mit offenem Kamin,
- Herrenzimmer,
- Speisekammer,
- Garderobenraum,
- Hauswirtschaftsraum,
- Gäste-WC,
- Treppenhaus mit original Holztreppen über alle Etagen,
- Tageslichtbad mit Wanne und Dusche, Bidet,
- großer Balkon im 1. OG,
- Fischgeräteparkett, Fliesen, Dielenböden,
- Gegensprechanlage,

Sonstiges

Da wir Objektangaben nicht selbst ermitteln, übernehmen wir hierfür keine Gewähr. Änderungen und Vorverkauf vorbehalten.
Wir bitten um Verständnis, dass wir aus Diskretionsgründen nur Anfragen bearbeiten können, welche Ihre vollständigen Kontaktdaten enthalten.

Gerne stehen wir Ihnen jedoch jederzeit für weitere Informationen zur Verfügung.

Weitere Details
Wohnfläche
217 m²
Nutzfläche
224 m²
Grundstücksfläche
1.473 m²
Anzahl Zimmer
8
Anzahl Schlafzimmer
5
Anzahl Badezimmer
1
Anzahl sep. WC
1
Anzahl Balkone
1
Anzahl Terrassen
1
Anzahl Etagen
3
Heizungsart
Zentralheizung
Energieträger
Öl
Verfügbar ab
nach Absprache
Ausstattung
  • Kategorie: Gehoben
  • Kamin
  • Gartennutzung
  • Wintergarten
  • Gäste-WC
Kontakt
Firma
Bream Immobilien
Telefon
+49 179 110 76 58
+49 179 110 76 58