Sprung zum Inhalt

CORBUSIERHAUS – freie 2-Zimmer-Maisonnette-Wohnung mit Blick ins Grüne in Berlin-Westend (Verkauft)

Objekt-Details
Objekt-ID
100261-BfF
Objektart
Etagenwohnung
Kauf oder Miete
Kauf / Verkauft
Baujahr
1958
Zustand
Gepflegt

Beschreibung

Le Corbusier - der Name ist Programm. In dem weltbekannten Architekturdenkmal wohnt man gerne und komfortabel. Die Wohnräume überzeugen durch puristische Schönheit mit viel Licht und herrlichen Ausblicken. Das engagierte Hausmeisterteam (24/7), kleiner Laden im Haus, Gemeinschaftsraum (Bibliothek und Waschküche) sowie die guten Parkmöglichkeiten machen das Leben in dem modernen Stadthaus einfach angenehm!
GEBÄUDE
”Da im Hansaviertel kein Platz für Unité d’habitation war, bietet der Senat von Berlin Le Corbusier mehrere Grundstück innerhalb der Stadt an. Le Corbusier entscheidet sich für ein Waldgrundstück an der Heerstraße auf einem Hügel südlich vom Olympiastadion. Das unerschlossene Grundstück am Rand eines Villengebietes befindet sich wie der angrenzende Grunewald im Besitz der Berliner Forsten.” *
WOHNUNG
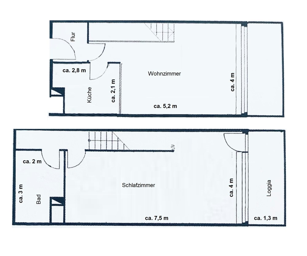
"Ein quadratischer Flur führt in die innenliegende, über zwei große Schiebefenster zum Wohnraum hin belichtete Küche. Der großzügige Wohnraum beeindruckt mit einer breiten Fensterfront mit Blick ins Grüne. Eine Treppe führt vom Wohnraum in einen kleinen Flur im Untergeschoss, von dem der große Schlafraum und das innenliegende Bad abgehen. Abstellräume befinden sich unter der Treppe und im Flur neben dem Badezimmer. Die Loggia ist von der unteren Wohnebene zugänglich und erstreckt sich über die Breite und Höhe der Doppelgeschossigen Wohnung." *

*Text-Quelle: www.corbusierhaus.org, 06.11.2021
Herausgeber: Die Wohnungseigentümergemeinschaft Corbusierhaus

Lage

Das Gebäude liegt auf einem sehr großen, parkähnlichen Grundstück unweit des S-Bahnhofs Olympiastadion. Die Nähe der Natur in Kombination mit der schnellen Anbindung an die Innenstadtlage ist sehr attraktiv. Westend ist ein Berliner Ortsteil im Bezirk Charlottenburg-Wilmersdorf.
Der Berliner Ortsteil Westend gilt als eine der besten Wohnlagen in Berlin und ist nach dem noblen Londoner Stadtteil „Westend“ benannt. Viele Straßen sind hier als „Alleen“ bezeichnet, was viel über das unendliche Grün im Westend aussagt.
Im benachbarten Charlottenburg finden Sie viele Kultureinrichtungen wie die Deutsche Oper, das Renaissance Theater und das Schloss Charlottenburg. Darüber hinaus werden Sportveranstaltungen im nahen Olympiastadion Berlin angeboten.

Ausstattung

Die Ausstattung und Gestaltung umfasst u.a.:
- bekanntes Corbusierhaus BJ 1958,
- zentral und grün gelegen,
- großzügige Raumaufteilung auf 2 Etagen,
- 1.Stock entspricht dem 3.Stock,
- raumbreite Fensterfronten,
- großzügige Loggia zum Park,
- renovierungsbedürftig (Innenräume unterliegen nicht dem Denkmalschutz),
- Einbauküche,
- Bad mit Badewanne und Waschmaschinenanschluss,
- Kabelanschluss,
- Fahrradstellplätze auf der Wohnetage,
- großer Gemeinschaftsraum mit Waschküche, Bibliothek u.v.m.,
- zahlreiche Stellplätze im Freien (kein Privatstellplatz),
- gepflegtes und gewartetes Gemeinschaftseigentum mit Sanierungsplan,
- aktuelle Rücklagen: ca. 5 Mio.€,

Sonstiges

Bitte haben Sie Verständnis, dass wir je nach Objekt die genaue Adressangabe zum Schutz der Bewohner erst kurz vor der Besichtigung bekanntgeben. Grundsätzlich können wir nur Anfragen bearbeiten, welche Ihre vollständigen Kontaktdaten enthalten.
Gerne unterstützen wir Sie auch bei Ihrer Immobilienfinanzierung und vermitteln bei Bedarf gerne einen unabhängigen Finanzierungsberater. Sprechen Sie uns an!
Gerne stehen wir Ihnen jederzeit für weitere Informationen zur Verfügung.
Bitte erkundigen Sie sich über uns und unser Immobilienangebot und unsere Leistungen auch auf unserer Website:
www.breamimmobilien.de

Weitere Details
Wohnfläche
66 m²
Anzahl Zimmer
2
Anzahl Schlafzimmer
1
Anzahl Badezimmer
1
Anzahl Balkone
1
Etage
1 von 10
Heizungsart
Zentralheizung
Energieträger
Gas
Personenaufzug
Ja
Verfügbar ab
sofort
Ausstattung
  • Kategorie: Standard
  • Fahrradraum
Kontakt
Firma
Bream Immobilien
Telefon
+491721470535