Sprung zum Inhalt

BEZUGSFREI – gepflegte 2,5-Zimmer-Wohnung mit Balkon, Hobbyraum u. TG-Stellplatz in Berlin-Kladow (Verkauft)

Objekt-Details
Objekt-ID
100265-BfF
Objektart
Etagenwohnung
Kauf oder Miete
Kauf / Verkauft
Baujahr
1968
Zustand
Gepflegt

Beschreibung

Nur wenige Gehminuten von Ortskern Alt-Kladow entfernt mit diversen Einkaufmöglichkeiten und Restaurants und in der Nähe des wunderschönen Havelufers liegt dieses gemütliche Zuhause.
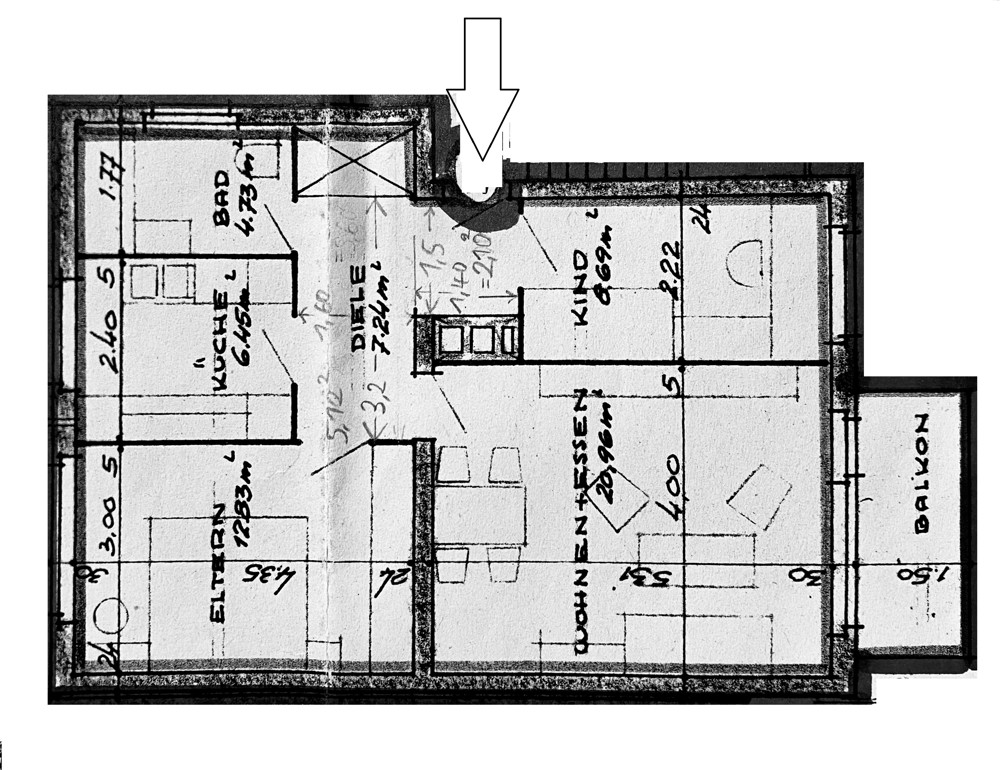
Angeboten wird eine in Berlin-Kladow zentral gelegene und helle, 2,5-Zimmer-Wohnung im 1.Stock mit Süd-West-Balkon, Hobbyraum und Tiefgaragenstellplatz. Sie ist Teil einer gepflegten Wohnanlage auf einem parkähnlichen Grundstück.
Das helle Wohnzimmer und der großzügige Balkon lädt zur Erholung und zum Ausspannen ein. Die freundliche Küche ist mit einer Einbauküche und teilweise neuen Geräten versehen. Ein hell gefliestes Wannenbad mit Fenster, ein Schlafzimmer und ein Kinderzimmer gehören ebenso dazu. Der gute Schnitt überzeugt ebenfalls: vom Flur aus erreicht man alle Räume sowie den kleinen Abstellraum. Der Wohnbereich ist mit einem hochwertigen Laminatboden in Eichenparkettoptik verlegt. Ein wohnlicher Hobbyraum (mit Heizung und Fenster), ein trockenes Kellerabteil und ein Stellplatz in der Tiefgarage runden das Angebot ab. Die Wohnung eignet sich für kleine Familien, für Paare und Einzelpersonen oder für Kapitalanleger.

Lage

Kladow - ein dörflich anmutender Berliner Ortsteil umgeben von Wäldern und Wiesen auf der einen Seite und den Gewässern der Havel sowie des Groß Glienicker Sees auf der anderen Seite - zeichnet sich durch seine hohe Lebensqualität aufgrund vieler Freizeitmöglichkeiten wie z.B. den Wassersport, Reiten, Fahrradfahren, Wandern oder auch Golf aus. Diverse Einkaufsmöglichkeiten stehen in Alt-Kladow mit einem umfangreichen Einzelhandelsangebot zur Verfügung. Auch Restaurants, verschiedene Schulen und Kitas sind in der unmittelbaren Umgebung vorhanden. Der bekannte Golfclub Gatow ist ebenfalls in wenigen Autominuten zu erreichen.
Mit dem Bus X34 (Richtung Zool. Garten) und mit dem Bus 134 (Richtung Rathaus Spandau, Fernbahnhof) ist man sehr gut an die Innenstadt oder weitere Ziele angebunden. Mit dem Auto fährt man ca. 25 min. zum Kurfürstendamm, nach Potsdam sind es ebenfalls ca. 25 min. Die Lage bietet den Charme ländlicher Idylle mit der Nähe zu den Angeboten der Stadt Berlin und Potsdam.

Ausstattung

Die Ausstattung und Gestaltung umfasst u.a.:

- gepflegte, komfortable Wohnanlage BJ 1968,
- niedrige Bebauung auf einem parkähnlichen Grundstück,
- sehr guter, praktischer Schnitt im 1. Stock,
- 2002 sanierte Wohnung (Elektrik, Fenster, Türen, Böden, Wände, Küche, Bad),
- alle Fenster mit Elektrojalousien, Südwestseite zusätzl. mit Sonnenmarkisen,
- großzügiger Südwest-Balkon mit Sonnenmarkise,
- Einbauküche mit neuem Geschirrspüler und Kühlschrank,
- hellgefliestes Bad mit Fenster, Badewanne und Waschmaschinenanschluss,
- Wohnräume und Flur mit hochwertigem Laminatboden verlegt,
- hochwertige Sicherheitseingangstür,
- beheizbarer Hobbyraum im Keller mit Tageslicht,
- Tiefgaragenstellplatz,
- aktuell werden die Dächer saniert (Kosten werden durch Rücklagen gedeckt),

Sonstiges

Da wir Objektangaben nicht selbst ermitteln, übernehmen wir hierfür keine Gewähr. Änderungen und Vorverkauf vorbehalten.
Dieses Exposé ist nur für Sie persönlich bestimmt. Eine Weitergabe an Dritte ist an unsere ausdrückliche Zustimmung gebunden und unterbindet nicht unseren Provisionsanspruch bei Zustandekommen eines Vertrages. Alle Gespräche sind über unser Büro zu führen. Bei Zuwiderhandlung behalten wir uns Schadenersatz bis zur Höhe der Provisionsansprüche ausdrücklich vor.
Gerne stehen wir Ihnen jederzeit für weitere Informationen zur Verfügung.
Bitte erkundigen Sie sich über uns und unser Immobilienangebot auch auf unserer Website: www.breamimmobilien.de

Weitere Details
Wohnfläche
65 m²
Anzahl Zimmer
2.5
Anzahl Schlafzimmer
2
Anzahl Badezimmer
1
Anzahl Balkone
1
Anzahl Stellplätze
1
Etage
1 von 2
Heizungsart
Zentralheizung
Energieträger
Öl
Tiefgaragen-Stellplätze
1
Verfügbar ab
sofort
Energieausweis
A+
A
B
C
D
E
F
G
H
0
25
50
75
100
125
150
175
200
225
>250
194 kWh
Ausweistyp
Verbrauch
Gültig bis
06.03.2029
Primärer Energieträger
Oel
Heizungsart
Zentralheizung
Baujahr
1968
Wertklasse
F
Verbrauch
194,00 kWh/(m²·a)
Ausstattung
  • Kategorie: Gehoben
  • Gartennutzung
Kontakt
Firma
Bream Immobilien
Telefon
+49 179 110 76 58
+49 179 110 76 58