Sprung zum Inhalt

SCHLÜSSEL ZUM TRAUMHAUS – 30er Jahre Charme mit großem Potenzial Nähe Havel in Berlin-Hohengatow

Objekt-Details
Objekt-ID
100270-G-BFF
Objektart
Zweifamilienhaus
Kauf oder Miete
Kauf
Baujahr
1937
Zustand
Teil/Vollrenovierungsbed
Preise
Kaufpreis
679.000,00 €
Außencourtage
3,57% des Kaufpreises inkl. 19% Mwst.

Beschreibung

In die Natur eingebettet, direkt auf der Haveldüne, liegt dieser freistehende, schmucke 30er-Jahre-Klassiker mit Anbau auf malerischem Grundstück in ruhiger Sackgasse in Berlin-Hohengatow. Hier ist die Lebensqualität besonders hoch: Sie genießen die Ruhe des großzügigen Gartens mit beeindruckendem Baumbestand, gehen in der Havel schwimmen, radeln oder spazieren in der grünen, noblen Umgebung.
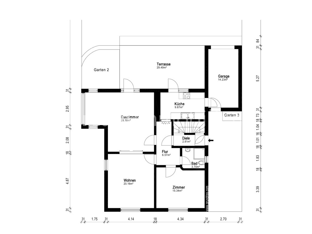
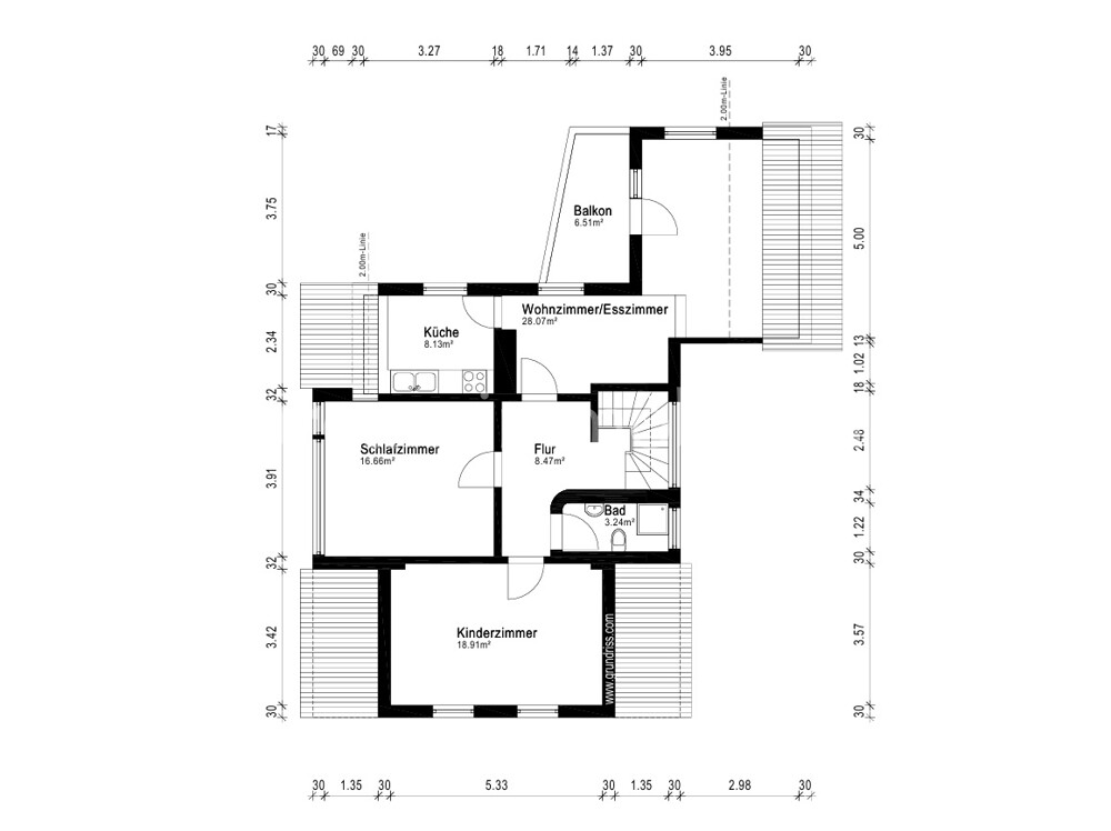
Auf dem 1.047 m² großen Grundstück erwartet Sie ein massiv gebautes Einfamilienhaus aus dem Jahr 1937, welches 1977 um einen Anbau (Aufstockung der Garage) erweitert wurde. Über eine großzügige Wohnfläche von ca. 174m² präsentieren sich über zwei Etagen insgesamt sieben Zimmer, zwei Tageslichtbäder, zwei Küchen, zwei Dielen, ein Balkon sowie eine großzügige überdachte West-Terrasse. Das Kellergeschoss erstreckt sich über die gesamte Grundfläche und ist in 5 Räume aufgeteilt: drei Abstellräume, ein Heizungsraum und ein Hobbyraum.
Das Haus besteht aus zwei Wohneinheiten und könnte wieder zu seinem Ursprung als Einfamilienhaus umgestaltet werden.
Diese Immobilie ist stark sanierungsbedürftig, überzeugt jedoch den Altbauliebhaber durch die typisch solide Bauweise und einige Originaldetails wie alte Türen, Kastenfenster, Holztreppe und Eichenparkett. Selbstverständlich wäre auch ein Neubau möglich. Lassen Sie sich von dem Charme der gehobenen Umgebung an der Havel verführen und schaffen sich Ihr individuelles Eigenheim auf großzügigem Grundstück durch Sanierung oder Neubau.

ANGEBOT FÜR UMFASSENDE SANIERUNG VORHANDEN!

Lage

Das Ein- bis Zweifamilienhaus liegt im Ortsteil Gatow (Hohengatow) im Süden von Spandau auf der Haveldüne, einem langgestreckten Hügelzug entlang der weiten Flusslandschaft. In wenigen Minuten erreichen Sie einladende Spazierwege, Radwege oder Badestellen. Auch Restaurants, Schulen, Kita und Einkaufsmöglichkeiten sind in der unmittelbaren, dörflichen Umgebung vorhanden. Die Lage des Hauses ist besonders attraktiv: kurz vor dem Ende einer ruhigen Sackgasse, wo dahinter ein Landschafts- und Naturschutzgebiet beginnt. Die nächste Badestelle an der Havel ist in nur wenigen Gehminuten zur erreichen. Am Ende der Straße liegt ein hübsches Einkehrlokal mit malerischer Terrasse mitten in der Natur. Die Lage bietet den Charme ländlicher Idylle mit der Nähe zu den Angeboten der Stadt Berlin. Mit dem Bus X34 sind es 30 Minuten zur Ringbahn, 45 Minuten zur Innenstadt. Die Altstadt Spandau mit ihrem Fernbahnhof ist mit dem Bus 134 in unter 20 Minuten zu erreichen. Das Rathaus Spandau kann auch mit dem Fahrrad in 30 Minuten erreicht werden, der Fahrradweg verläuft fast die ganze Zeit längs der Havel und zieht sich weiter bis nach Kladow, wo stündlich die BVG-Fähre nach Wannsee ablegt. Für Freizeit- und Erholungsvielfalt bietet die Havel und Ihre Umgebung die besten Voraussetzungen. In unmittelbarer Umgebung befinden sich die Gatower Heide, die Rieselfelder, die Döberitzer Heide, der Wannsee und die Gewässer Potsdams mit den historischen Prachtbauten, Schlössern und Parks (Weltkulturerbe). Auch Wassersportfreunde kommen hier auf ihre Kosten. Zahlreiche Wassersport- und Segelclubs oder Marinas säumen die Ufer. Der Berliner Golf Club Gatow liegt ebenfalls vor der Tür. Sie wohnen Mitten im Grünen und sind gleichzeitig nah an der City: Mit dem Auto fährt man ca. 25 min. zum Kurfürstendamm, nach Potsdam sind es ebenfalls ca. 25 min.

Ausstattung

ANGEBOT FÜR UMFASSENDE SANIERUNG VORHANDEN!

Die Ausstattung und Gestaltung umfassen u.a.:
- freistehendes Haus Baujahr 1937 und Anbau/Aufstockung Garage 1977,
- absolut ruhiges Grundstück (Sackgasse) nahe der Havel 1.047m²,
- traumhafte Lage an Landschaftsschutzgebiet angrenzend, ca. 300m zur Badestelle,
- ca. 174m² Wohnfläche verteilt auf 2 Wohneinheiten,
- vollunterkellert,
- 30er-Jahre Originaldetails: Türen, Fenster, Parkett, Steinfliesen, Holztreppe,
- Küche und Wohnzimmer mit Zugang zur West-Terrasse und zum Garten,
- Wohnzimmer: Erker mit Panoramafenster hochwertige Schiebetür zum Zimmer 2,
- 2 Bäder mit Fenster,
- Zimmer 4 im EG (14m2 als Nutzfläche bei Deckenhöhe ca.2,2m) wurde ursprünglich 1937 als Garage massiv gebaut,
- Deckenhöhe (abgehangene Decken): EG ca. 2,7m, DG ca. 2,4m,
- überdachte Terrasse, ca. 24m²,
- blickgeschützter Garten mit altem Baumbestand,
- Südwest-Balkon im DG,
- Kaltdachspeicher (event. Ausbaureserve) ca. 45m2,
- Garage und Stellplatz im Freien,
- umfangreiche Sanierung und Heizungserneuerung erforderlich,
- Trocknung nach Wasserschaden erfolgt (2025)

Sonstiges

Durch die Inanspruchnahme unserer Maklertätigkeit als Nachweis- und / oder Vermittlungsmakler kommt ein Maklervertrag auf Basis der Daten dieses Objektexposés zustande. Verdient und fällig ist das Honorar, sobald die Gelegenheit zum Abschluss eines Kaufvertrages nachgewiesen und der Kaufvertrag geschlossen worden ist oder der Kaufvertrag vermittelt und geschlossen worden ist. Als Endverbraucher haben Sie ein 14-tägiges Widerrufsrecht des Maklervertrages. Es gelten auch unsere AGBs.
Bitte haben Sie Verständnis, genaue Adressangaben geben wir zum Schutz der Bewohner erst kurz vor der Besichtigung bekannt. Gerne stehen wir Ihnen jedoch jederzeit für weitere Informationen zur Verfügung.
Unsere Website: www.breamimmobilien.de

Weitere Details
Wohnfläche
174 m²
Nutzfläche
140 m²
Grundstücksfläche
1.047 m²
Anzahl Zimmer
7
Anzahl Schlafzimmer
4
Anzahl Badezimmer
2
Anzahl Balkone
1
Anzahl Terrassen
1
Kellerfläche
80 m²
Dachbodenfläche
45 m²
Anzahl Stellplätze
2
Anzahl Wohneinheiten
2
Anzahl Etagen
2
Heizungsart
Zentralheizung
Energieträger
Öl
Garagen-Stellplätze
2
Verfügbar ab
sofort
Energieausweis
A+
A
B
C
D
E
F
G
H
0
25
50
75
100
125
150
175
200
225
>250
464 kWh
Ausweistyp
Bedarf
Gültig bis
12.07.2033
Primärer Energieträger
Oel
Heizungsart
Zentralheizung
Baujahr
1937
Wertklasse
H
Bedarf
464,30 kWh/(m²·a)
Ausstattung
  • Kategorie: Standard
Kontakt
Firma
Bream Immobilien
Telefon
00491791107658
00491791107658
Direktanfrage

* Pflichtfelder